Beschrijving

3 kamer benedenwoning  met extra ramen door hoekligging
Wil je centraal in de stad wonen voor alle faciliteiten binnen loopafstand dan zit je hier perfect. Deze 3 kamer beneden hoekwoning heeft 2 ruime slaapkamers, woonkamer met open keuken, badkamer, berging en kelder.   

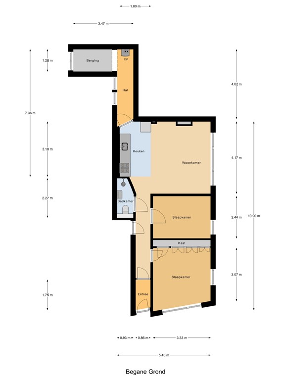
Je komt binnen in een tochthal, gang met toegang naar de kelder 6m² voor de "wijncollectie" en hangt de meterkast, twee fijne ruime slaapkamers ca. 8.4 en 13m² waarbij de grootste slaapkamer ingebouwde vaste kasten heeft voor kleding, moderne badkamer met toilet, douchehoek, wastafel met spiegel,  ruime woonkamer met open keuken v.v. ingebouwde combi oven, gaskookplaat, vaatwasser, RVS wasemkap en koel/vriescombinatie, deur naar gang met opstelplaats van de CV, aansluiting voor de wasmachine in ruime berging. 

Het pand is netjes onderhouden. Kozijnen van kunststof met HR  beglazing bij slaapkamers en enkel bij woonkamer. Kleine VVE met twee eenheden die reserveren voor onderhoud en medio september 2025 € 4,939.81 aan saldo hebben staan.

Locatie
De Singel ligt vlakbij het Centraal Station van Schiedam en daar stoppen bus metro en treinen. In slechts 10 minuten brengt de metro je naar Rotterdam Centrum of naar het strand. In de straat is diverse gezellige horeca. Loop je naar de Broersvest toe dan kom je eerst bij Theater aan de Schie en vervolgens in het grote winkelgebied met ruim aanbod van winkels maar ook hele gezellige horeca en restaurants. Aan de Lange Haven zit de fameuze chocolatier de Bonte Koe voor een verslavende smaaksensatie. Het grote Pathé bioscoopcomplex zit achter het station en loop je in paar minuten naartoe.
Supermarkten voor de dagelijkse boodschappen zijn binnen loopafstand. 
Nabij zijn diverse sportcentra voor Fitness, boksen, kickboksen, voetbal, basketbal etc of ga lekker wandelen of fietsen langs de Maas en in de haven.
De wijk is goed bereikbaar. Met de auto ben je snel op de rijkswegen A4 en A20. Parkeren is middels vergunning.

Bijzonderheden 
NEN 2580 meetrapport aanwezig 
Gebruiksoppervlak wonen 59m²
Gebouwgebonden buitenruimte 0m²
Overige inpandige ruimte  5.6m²
Inhoud 263m³

Bouwjaar 1937
Gelegen op eigen grond
Energielabel E
Actieve VVE met bijdrage van € 50,- per maand
CV combi ketel Ferroli uit 2019
Er zal ouderdom en niet bewonersclausule worden opgenomen in de koopovereenkomst
Achter de woning zat een tuintje maar is verbouwd tot grote wasruimte. 
Fijne kelder voor opslag
Door de hoekligging heb je extra veel raampartijen die zorgen voor aangename lichtinval
Het appartement is te aanvaarden per direct

Log in bij Eerlijk Bieden op onze website om toegang te krijgen tot alle documenten

Deze informatie is met zorg samengesteld, maar voor de juistheid ervan kan door Match Makelaars geen aansprakelijkheid worden aanvaard, noch kan aan de vermelde gegevens enig recht worden ontleend. Nadrukkelijk is vermeld dat deze informatie verstrekking niet als een aanbieding of offerte mag worden beschouwd. 

De Meetinstructie is gebaseerd op de NEN2580. De Meetinstructie is bedoeld om een meer eenduidige manier van meten toe te passen voor het geven van een indicatie van de gebruiksoppervlakte. De Meetinstructie sluit verschillen in meetuitkomsten niet volledig uit, door bijvoorbeeld interpretatieverschillen, afrondingen of beperkingen bij het uitvoeren van de meting. 

Match Makelaars behartigt de belangen van de verkopende partij, schakel uw eigen Vastgoed Nederland aankoop makelaar in.

Kenmerken