Beschrijving
Dubbele Benedenwoning met tuin in juweeltje van een straat.
Het benedenhuis met heeft veel potentie om er je eigen droompaleis van te maken. Gelegen in aantrekkelijke straat achter de Heemraadssingel met alleen plaatselijk verkeer. De bewoners hebben de buitenruimte hartstikke leuk aangepakt en omgevormd tot groene oase.
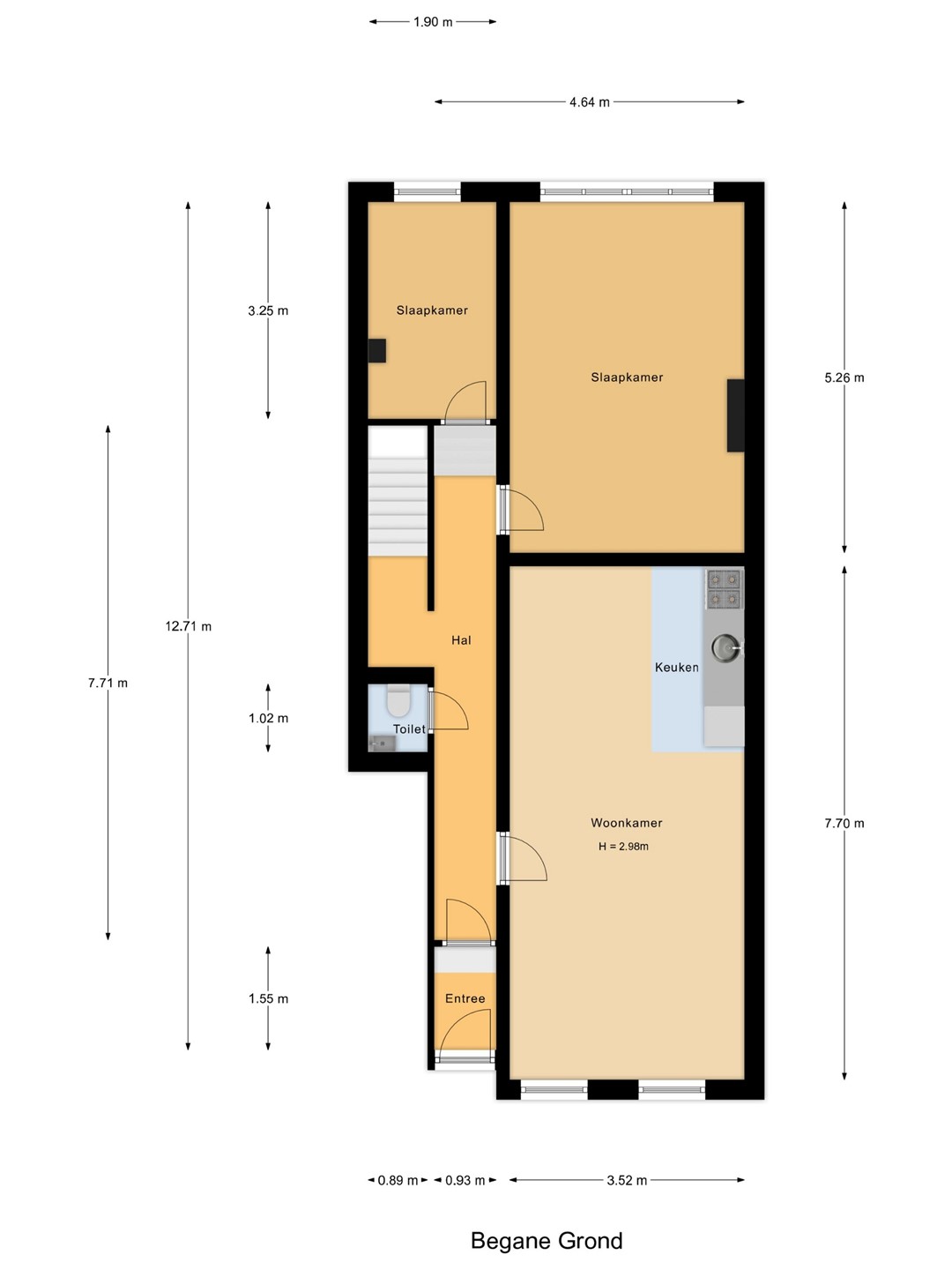
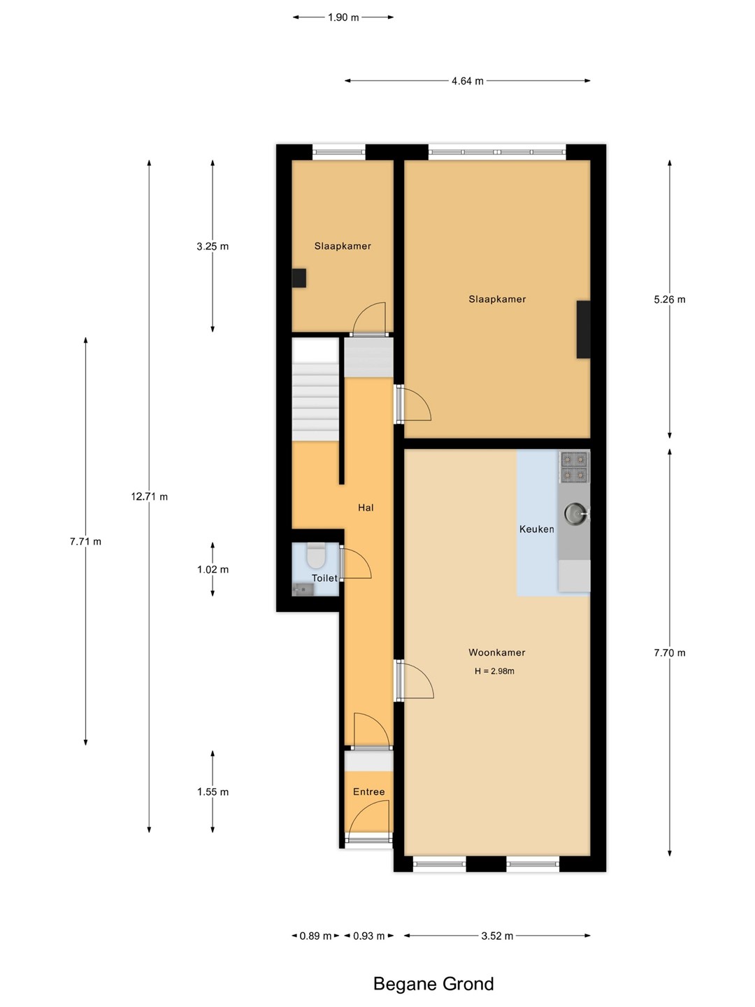
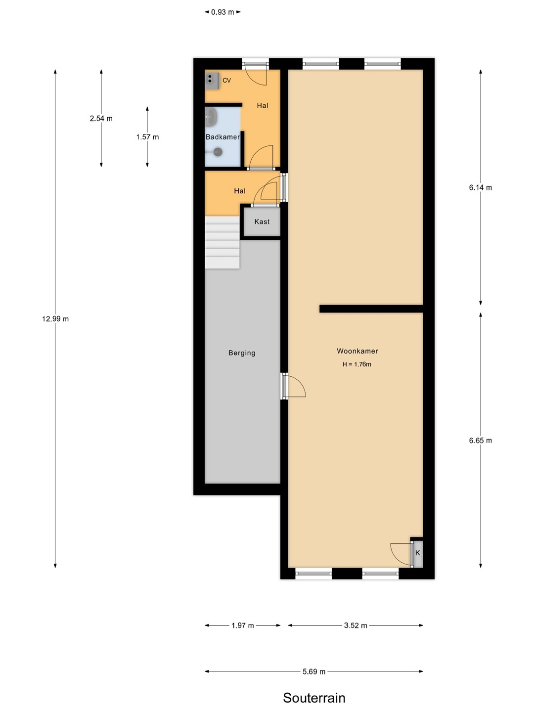
De woning bestaat uit twee woonlagen. Een souterrain met twee ruimten, grote bergruimte, een badkamer met hoog plafond en ruimte voor CV en wasmachine. Verhoogd begane grond niveau met woonkamer, slaapkamer, opkamer, berging en toilet
De woning komt uit de verhuur en heeft goede gestuukte wanden en plafonds. De vloer is van planken waarop nog een vloer aangebracht moet worden, het souterrain is van beton. De keuken is niet zo uitgebreid en kun je ook makkelijk vervangen en/of verplaatsen. Tevens bestaat de mogelijkheid om de woonkamer en slaapkamer door te breken en er een hele grote living van te maken waarin ook bijvoorbeeld een luxe keuken met kookeiland geplaatst kan worden. Keuze genoeg om het naar je eigen zin te maken
Indeling
Je komt binnen in vestibule met groene betegeling en boven voordeur groen getinte ruitjes. Fraaie gang met berging, luxe nieuw toilet met fonteintje en toegang naar woonkamer 27m² met open keuken en 3m hoog plafond, royale slaapkamer achter 18.5m² met grote raampartij, opkamer 6.5m² met vaste kast.
De wanden en plafonds zijn strak afgewerkt en glad gestuukt. Schilderwerk in uitstekende staat.
Door de plafondhoogte van 3m voelt het ruimer, vrijer en aangenaam aan.
De tussenwand is eenvoudig te verwijderen indien de wens is om het door te breken.
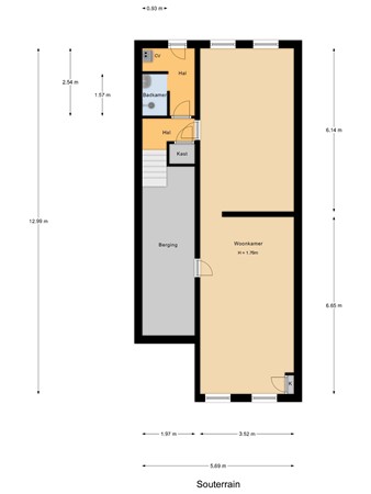
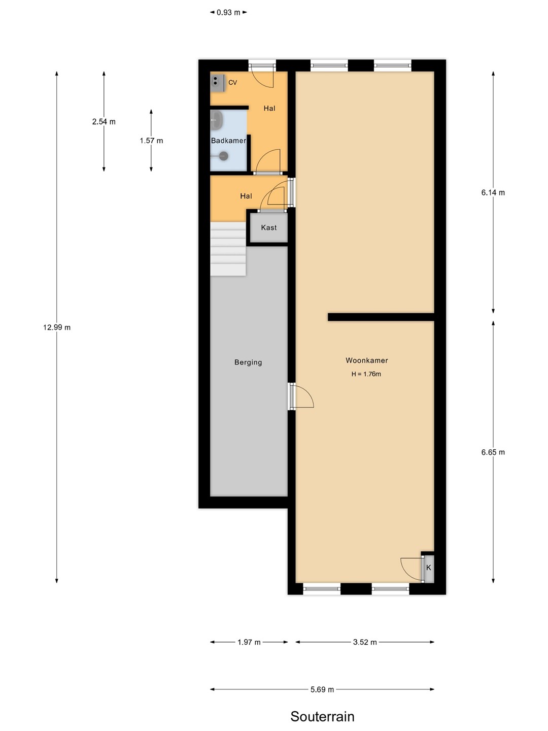
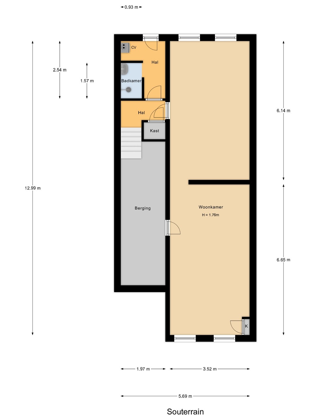
Souterrain
Zeer groot souterrain waar je zelf een bestemming aan kunt geven. Plafond hoogte is ca 1.78m dus langere mensen moeten bukken. Maar de ruimte is bijzonder nuttig om er bijvoorbeeld slaapkamer, Mancave of speelruimte voor kinderen van te maken.
Het zou uitgegraven kunnen worden om de gewenste minimale 2m hoogte te creëren die waarde verhogend is voor het benedenhuis.
Er is een zeer ruime berging waar echt heel veel opgeslagen kan worden en stapels isolatie materiaal ligt die de koper kan gebruiken om de vloer te isoleren.
Naar de toegang tuin is een badkamer met douche en wastafel en separaat een opstelplaats met de CV en aansluiting voor de wasmachine.
De achtertuin is beregeld met kleurrijke tegels en kun je hele toffe en gezellige buitenruimte van maken om in de zomermaanden lang te vertoeven met vrienden en familie. Het binnenterrein is afgesloten voor onbevoegden en geheel omringd door woningen.
Locatie
Rotterdam - Middelland is de meest kleurrijke wijk van Rotterdam
Middelland is een enerverende wijk direct naast het Centrum met de langste winkelstraat van Nederland aan de Nieuw Binnenweg, Chinatown bij de West Kruiskade en de lange Middelland- en Vierambachtsstraat met kilometers winkels, toko’s, cafés, restaurants, afhaalzaken en supermarkten. Geen enkele wijk heeft zo’n ruim en divers aanbod als Middelland.
Je woont heel centraal want het is maar vijf minuten fietsen naar het Centraal Station en de binnenstad. Rotterdam wordt steeds meer onbegaanbaar gemaakt met de auto dus geen gedoe met duur parkeren want je fietst ernaartoe. Als je uit wilt gaan is de keuze enorm of ga lekker wandelen door de stad en langs de mooie singels.
Voor avondje uit kun je naar de Doelen, Schouwburg, honderden restaurants, Bioscoop, Casino etc.. Het zit nog geen kilometer verderop en je bent al gearriveerd.
Diergaarde Blijdorp ligt op loopafstand en is aanrader om een seizoenkaart bij te nemen.
Bijzonderheden:
NEN 2580 meetrapport aanwezig
Totale gebruiksoppervlakte 138m²
Gebruiksoppervlakte wonen 74.5m²
Gebruiksoppervlakte overige inpandige ruimte 63.4m²
Achtertuin 36m²
Berging 0,0m²
Inhoud 440m³
Bouwjaar 1916
Energielabel A
Gelegen op eigen grond
VVE appartement € 50,- per maand
VVE is in oprichting en zal bij levering geactiveerd worden.
Er zal een niet bewonersclausule, ouderdomsclausule en verklaring van geen bezwaar tegen onder splitsing bovenwoningen worden opgenomen.
Te aanvaarden per direct
Log in bij Eerlijk Bieden op onze website om toegang te krijgen tot alle documenten
De Meetinstructie is gebaseerd op de NEN2580. De Meetinstructie is bedoeld om een meer eenduidige manier van meten toe te passen voor het geven van een indicatie van de gebruiksoppervlakte. De Meetinstructie sluit verschillen in meetuitkomsten niet volledig uit, door bijvoorbeeld interpretatieverschillen, afrondingen of beperkingen bij het uitvoeren van de meting.
Bovenstaande presentatie is niet meer dan een uitnodiging tot het doen van een bod, er kunnen geen rechten of verplichtingen aan worden ontleend.
Match Makelaars behartigt de belangen van de verkopende partij, schakel uw eigen Vastgoed Nederland aankoop makelaar in.