Beschrijving

Waar koop je nog een groot 5 kamer dubbel bovenhuis met schitterend  dakterras op het Zuiden voor dit bedrag!!  Twee ruime verdiepingen heb je tot je beschikking en biedt verschillende mogelijkheden om in te delen. In de afgelopen 25 jaar dat we dit object in de verhuur hadden bleek elke huurder een andere indeling te wensen. De woonkamer was oorspronkelijk op de 3e verdieping en liep van voor naar achteren, erna werd de bovenste verdieping de woonkamer en zat de keuken in de slaapkamer ernaast, erna werd de woonkamer op 3e verdieping gehalveerd met boven slapen en de laatste huurders gebruikten de bovenste verdieping als woonkamer met omdat je in de zomer heerlijk de deuren kunt opendoen en geniet van het formidabele dakterras.  

Indeling 

Open portiek naar de 1e verdieping

Eigen opgang naar 3e verdieping
Verzorgd trappenhuis, gang met meterkast, toilet en bergkast, op deze verdieping was een woonkamer en-suite waar twee kamers van gemaakt zijn van beide 21m², gesloten keuken 5m² met keukenblok en deur naar balkon, 3e kamer aan voorzijde 7m² met deur naar balkon.

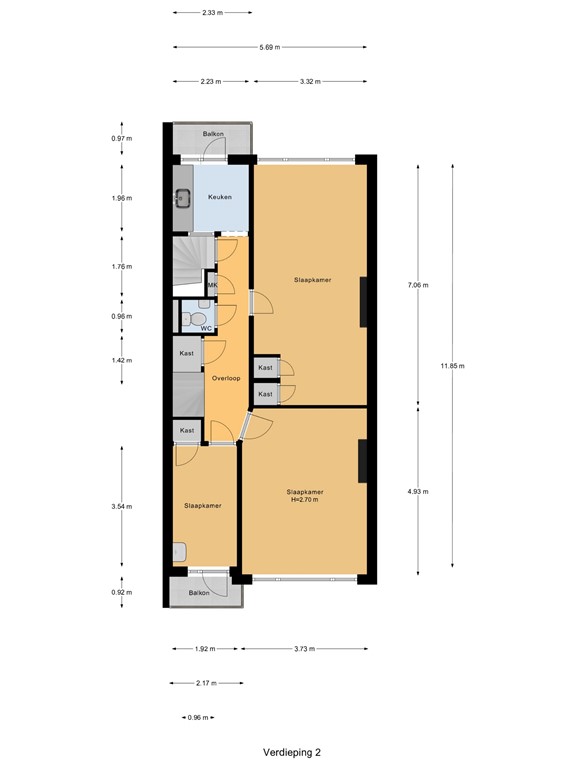
4e verdieping
Overloop met deur naar terras en doucheruimte, doorzon slaap of woonkamer 24m² met openslaande deuren naar het heerlijke terras van ca. 34m² met vrij uitzicht over de wijk, 5e kamer 8m² aan de voorzijde met wastafel en aansluiting wasmachine. 

Locatie 
Het gebied rondom Zuidplein wordt getransformeerd tot een modern stadscentrum met extra woningen, horeca en faciliteiten. Met meer dan 160 winkels is Zuidplein het grootste overdekte winkelcentrum van Nederland. Het is ook een OV-knooppunt met groot bus- en metrostation (reistijd 10min naar Centrum). 
Theater Zuidplein en Ahoy bieden concerten, beurzen en voorstellingen. Pathé bouwt er een nieuwe bioscoop. Of ga naar het zwembad met Olympische afmetingen.
Ernaast ligt het grootste binnenstedelijk park van Europa “Het Zuiderpark” met buiten fitness apparatuur, wandel en fietspaden
De wijk is goed bereikbaar. Met de auto ben je snel op de rijkswegen A15 en A16. Wil je naar het centrum dan is het 15 minuten op de fiets of 10 minuten met de metro. 

Bijzonderheden
- Gelegen op eigen grond
- Actieve VVE met bijdrage van € 129,29 per maand
- In 2024 zijn de standleiding en waterleidingen in het gehele pand vervangen
- VVE is in voorbereiding onderhoud volgens MJOP. Onder andere de openslaande deuren dienen vervangen te worden in VVE verband en worden momenteel offertes voor aangevraagd
- Er ligt een vloer met eronder een dubbele 28dB geluid isolerende onderlaag
- Verwarming en warm water middels CV combi ketel uit 2019  
- Er zal een ouderdom en niet bewonersclausule worden opgenomen 
NEN 2580 meetrapport aanwezig 
Gebruiksoppervlak wonen 110m²
Gebouwgebonden buitenruimte 33m²
Inhoud      373m³
Bouwjaar 1939
- Te aanvaarden per direct

De Meetinstructie is gebaseerd op de NEN2580. De Meetinstructie is bedoeld om een meer eenduidige manier van meten toe te passen voor het geven van een indicatie van de gebruiksoppervlakte. De Meetinstructie sluit verschillen in meetuitkomsten niet volledig uit, door bijvoorbeeld interpretatieverschillen, afrondingen of beperkingen bij het uitvoeren van de meting. 

Bovenstaande presentatie is niet meer dan een uitnodiging tot het doen van een bod, er kunnen geen rechten of verplichtingen aan worden ontleend. 

Match Makelaars behartigt de belangen van de verkopende partij, schakel uw eigen Vastgoed Nederland aankoop makelaar in.

Kenmerken