Beschrijving
Benedenwoning met tuin!!
Ervaar de rust in een drukke stad.
Wonen op de begane grond met tuin in een beschermd stadsgezicht? Deze zeer sfeervolle en comfortabele benedenwoning heeft een zonnige achtertuin, gesitueerd op het westen en staat in de gewilde woonwijk Bergpolder.
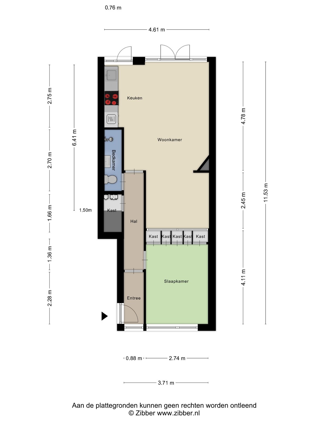
Het appartement beschikt over een gezellige en tuingerichte woon/eetkamer met open keuken waarbij het verhoogde terras als het ware bij de buitenruimte door het vele glas bij de woonkamer is getrokken. Wanneer je de openslaande deuren richting de tuin open zet ervaar je het buitengevoel.
Het appartement is voorzien van kunststof kozijnen met HR beglazing en heeft vloerisolatie. De doelmatige keuken beschikt over voldoende kastruimte, een spoelbak en keramische kookplaat met afzuigkap.
Aan de voorzijde van de woning is de slaapkamer gesitueerd met voldoende ruimte voor een kastenwand en een tweepersoonsbed.
De moderne badkamer is gerenoveerd in 2017 en beschikt over een inloopdouche, een wastafel, toilet en handdoekradiator. In de gangkast waar de meterkast ook zit is ook de aansluiting voor een wasmachine.
Locatie
Bergpolder ligt tussen Blijdorp en het Liskwartier in en kenmerkt zicht door stijlvolle jaren 30 bouw met voornamelijk appartementen in de koopsector.
In de omgeving zijn bijzonder veel winkels en supermarkten zoals aan het Stadhoudersplein, Eudokiaplein en de lange Noorderboulevard. In het trendy Station Bergweg zitten leuke restaurants maar in de hele buurt zitten pareltjes van restaurants waar je blij van gaat worden.
In het centrum ben je in 10 minuten met de fiets of tram die aan de Schieweg stopt. In het centrum vind je natuurlijk alle soorten entertainment. Voor een leuke avond uit kun je naar De Doelen, Luxor theater, Holland Casino, bioscopen, Schouwburg etc.
Voor sporten heb je ruime keuze aan fitnesscentra, roeien, zwembad of ga lekker wandelen naar Blijdorp of fietsen door de stad en de natuur.
De wijk is goed bereikbaar. Met de auto ben je snel op de rijkswegen A13 en A20. OV is uitstekend want het CS is vlakbij en je hebt twee tramlijnen binnen loopafstand.
Onderhoud
De woning is van binnen opnieuw geschilderd in 2025 in frisse kleuren. Het terras is gemaakt van hardhout en 2 jaar geleden aangelegd en in 2025 opnieuw in de olie gezet. Tuin is in 2025 helemaal aangepakt en zijn o.a. de schuur en schuttingen opnieuw geschilderd.
De VVE is actief. Binnenkort wordt gestart met het vernieuwen van het dak die tevens geïsoleerd gaat worden en worden onder de begane grond vloer de nog aanwezige loden leidingen, grespijpen en riool vervangen. Daarmee zal het een van de best onderhouden panden in de buurt worden. De VVE bijdrage is vanwege de financiering van de verbouwing per 1 juli verhoogd naar € 172,74 per maand
Bijzonderheden
NEN 2580 meetrapport aanwezig
Gebruiksoppervlak wonen 49m²
Bruto vloeroppervlak 56m²
Tuin 46m²
Berging 6m²
Inhoud 161m³
Bouwjaar 1933
Gelegen op Eigen Grond
Energielabel C
Actieve VVE met bijdrage van € 172,74 m.i.v. 1 juli 2025
Er is Niet bewoner-, asbest/lood- en ouderdomsclausule van toepassing
Via Eerlijk Bieden tool op onze website krijg je toegang tot alle documenten. Klik op de Tab "breng hier een bod uit" en kun je inloggen de uitgebreide data te lezen.
Te aanvaarden per direct